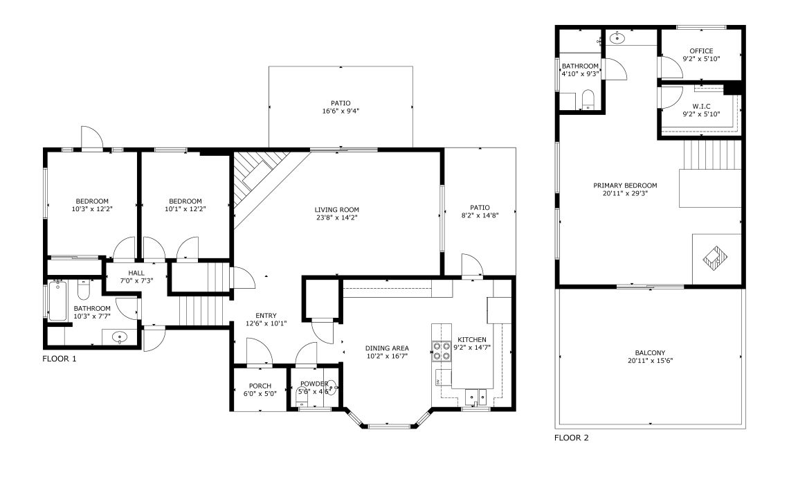
Owned by the same family for over 46 years and on the market for the first time, this rare Descanso property offers space to enjoy a true rural lifestyle. Situated on 8.4 usable acres, this 3-bedroom, 2.5-bath home offers approximately 1,962 square feet and a setting that is both peaceful and functional.
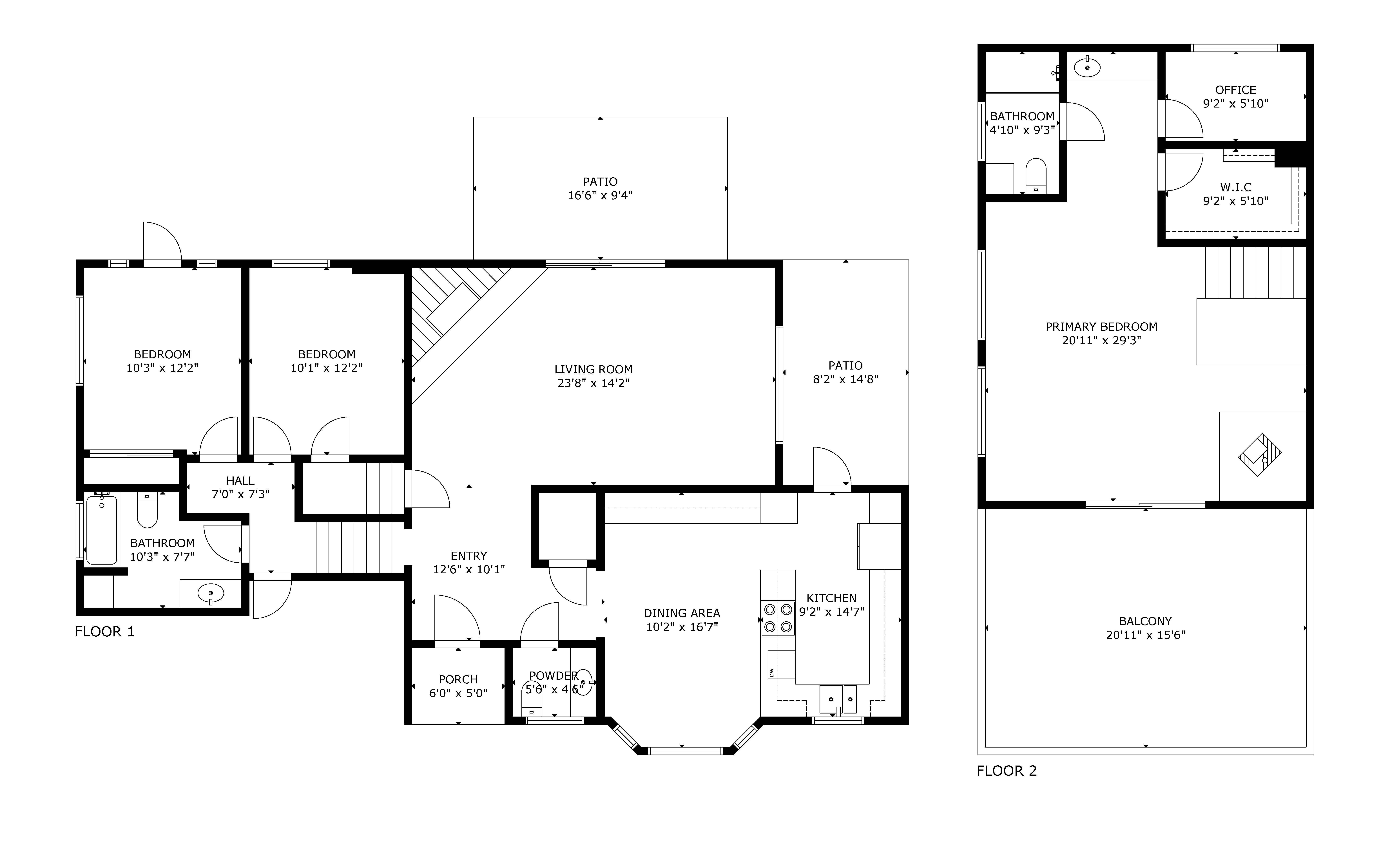
The main level features a spacious family room with vaulted open-beam ceilings and fireplace, a large dining room, a generous kitchen, and a half bath. Upstairs, the expansive primary suite includes a fireplace, walk-in closet, attached office or bonus room, and a large private deck to take in the views. Two additional bedrooms and a full bath are located on the lower level. An oversized attached 2-car garage adds to the home’s practicality.
The land offers plenty of room for horses, animals, recreation, gardening, or future improvements. With a 3-stall barn and corals already in place, this property is well-suited for buyers seeking space, versatility, and country living.
Enjoy the peaceful rural atmosphere of Descanso while remaining just minutes from I-8 and a convenient drive to downtown El Cajon.
Contact us today with any questions or to set up a private tour! If you are buying a home or selling a home, make sure to check our buyer and seller resources.
Listed By Glen Henderson with Premier Homes Team.
Glen is fantastic! I researched real estate agents online. Read about this amazing real estate agent Glen Henderson. He has 5 stars on every platform and has earned numerous awards. Glen is confident, positive, friendly and caring. He has extensive knowledge of difficult home sales. He knows how to properly market your home so you can sell after a short viewing. He will work with you anyway you’d like and offer his expertise at every turn. When you need Glens help or have a question he promptly replies. I felt important and felt my elderly father was treated with empathy and kindness when working with Glen. Glen knows how to sell your house, he will competitively negotiate the best price to get you more than you expected. I am so grateful that I found Glen, after our initial consultation I was sold on going with him. I have a few Real Estate agent friends in this competitive market in San Diego. I spoke with each of them and still chose Glen. My friends are definitely impressed. Go with Glen Henderson he will get you top dollar for your property, he will be available for you while you navigate through the process of selling. And he’s quick, I told him I wanted my home sold in December — the buyers put their deposit down 12/23. This guy is amazing!
When I decided to sell my home I realized that there are a number of things that a realtor likes for you to have done before you call them. I had a ton of things but I still called. I looked around for qualifications and interviewed several brokers and was very encouraged by what I found in Glen Henderson from Homelite.. Glen took all the issues, good and bad, and quickly came up with a strategy to handle the sale of my beloved estate home.. With very little effort on my part he put the plan into action and within several short days the house was listed and drawing unsurpassed interest from a great number of potential buyers. within two or three days we got through literally dozens of showings. Glen and his team made sure the house showed well and was presented in its best light. Before the week was out , he masterfully secured a solid offer for me ! From then on Glen and his team stayed in touch to explain each step, deciphering forms and requirements with ease. No snags, no frustrations and no worries. Let Glen handle your Real Estate needs and see what it's like to work with the broker that brought in my transaction in time and exceeded my asking price and expectations.
Glen is an extremely honest and trustworthy realtor. As others have mentioned, I found Glen through a Dave Ramsey referral and, like others, I interviewed three different realtors before choosing Glen. He sold my mother's outdated and dilapidated condo at an amazing price within days at a much higher price than the