Don’t miss this one-of-a-kind home in Rancho Penasquitos! Situated on a .3 acre cul-de-sac lot overlooking the Los Peñasquitos Canyon Preserve, giving you 180-degree panoramic views to to east.
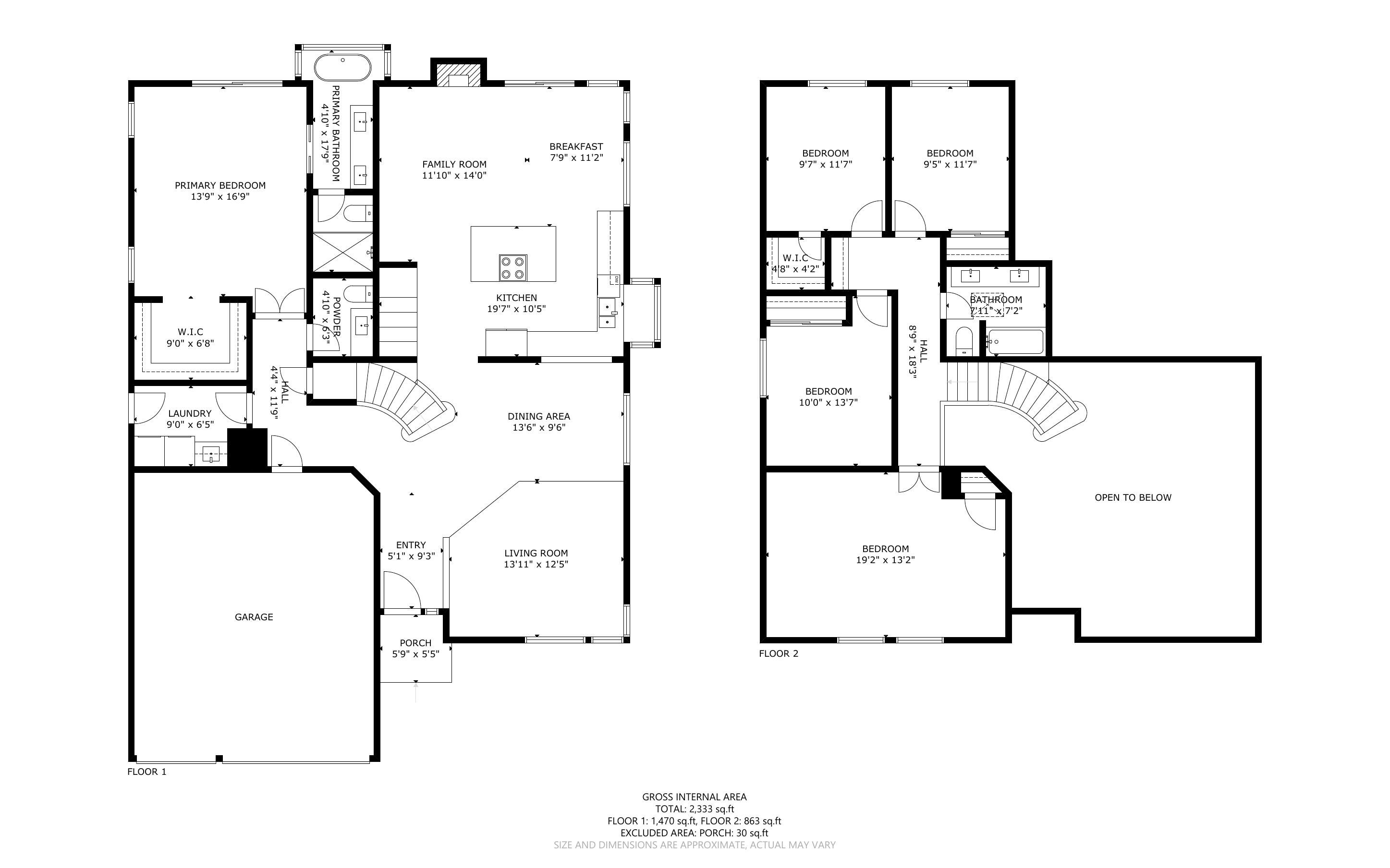
The spacious floorplan features 5 bedrooms, and 2.5 baths spread over 2,454 sqft. As you enter the home, you are greeted by soaring vaulted ceilings and ample natural light in the living room and dining area. Toward the back of the home is the recently remodeled kitchen that is open to the family room. The massive primary bedroom and bath area are on the first floor and are located at the back of the home. The primary bath was just remodeled with a shower and large soaking tub that is perfect for taking in the stunning views. There is also a full laundry room and an additional half bath on the first level. Upstairs, you will find 4 additional bedrooms and a remodeled bath. One of the upstairs bedrooms is huge, and could easily be 2 rooms. The attached 3-car garage has an epoxy floor and features ample space for parking and storage.
The backyard is low maintenance and has plenty of space to add a pool. There are multiple planters, and fruit trees throughout the property, which include loquat, lemon, lime, papaya, orange, nectarine, plums, and more.
The community does not have HOA or Mello-Roos, and the home is within walking distance of Canyon View Elementary, parks, and trails. Also within minutes of the YMCA, library, shopping, and restaurants. The Los Penasquitos Canyon Preserve features a 6.8-mile loop trail that is a very popular area for hiking, mountain biking, and running. Located within the award-winning Poway Unified School District.
Homes like this rarely come on the market! This is not one you want to miss!
Contact us today with any questions or to set up a private tour! If you are buying a home or selling a home, make sure to check our buyer and seller resources. Listed By Glen Henderson with Premier Homes Team.
.jpg)
.jpg)
Glen is fantastic! I researched real estate agents online. Read about this amazing real estate agent Glen Henderson. He has 5 stars on every platform and has earned numerous awards. Glen is confident, positive, friendly and caring. He has extensive knowledge of difficult home sales. He knows how to properly market your home so you can sell after a short viewing. He will work with you anyway you’d like and offer his expertise at every turn. When you need Glens help or have a question he promptly replies. I felt important and felt my elderly father was treated with empathy and kindness when working with Glen. Glen knows how to sell your house, he will competitively negotiate the best price to get you more than you expected. I am so grateful that I found Glen, after our initial consultation I was sold on going with him. I have a few Real Estate agent friends in this competitive market in San Diego. I spoke with each of them and still chose Glen. My friends are definitely impressed. Go with Glen Henderson he will get you top dollar for your property, he will be available for you while you navigate through the process of selling. And he’s quick, I told him I wanted my home sold in December — the buyers put their deposit down 12/23. This guy is amazing!
When I decided to sell my home I realized that there are a number of things that a realtor likes for you to have done before you call them. I had a ton of things but I still called. I looked around for qualifications and interviewed several brokers and was very encouraged by what I found in Glen Henderson from Homelite.. Glen took all the issues, good and bad, and quickly came up with a strategy to handle the sale of my beloved estate home.. With very little effort on my part he put the plan into action and within several short days the house was listed and drawing unsurpassed interest from a great number of potential buyers. within two or three days we got through literally dozens of showings. Glen and his team made sure the house showed well and was presented in its best light. Before the week was out , he masterfully secured a solid offer for me ! From then on Glen and his team stayed in touch to explain each step, deciphering forms and requirements with ease. No snags, no frustrations and no worries. Let Glen handle your Real Estate needs and see what it's like to work with the broker that brought in my transaction in time and exceeded my asking price and expectations.
Glen is an extremely honest and trustworthy realtor. As others have mentioned, I found Glen through a Dave Ramsey referral and, like others, I interviewed three different realtors before choosing Glen. He sold my mother's outdated and dilapidated condo at an amazing price within days at a much higher price than the